定住促進住宅(子育て世帯型住戸)入居者募集のお知らせ
更新日:2025年5月30日
定住促進住宅(子育て世帯型住戸)入居者募集のお知らせ
(1)入居者募集をする住宅
| 住宅・団地名 | 定住促進楯岡北町団地(1号) |
|---|---|
| 所在地 | 村山市楯岡北町二丁目4番1号 |
| 建設年/構造/全階数 | 平成5年(令和4年該当住戸改装) / RC造 / 5階 |
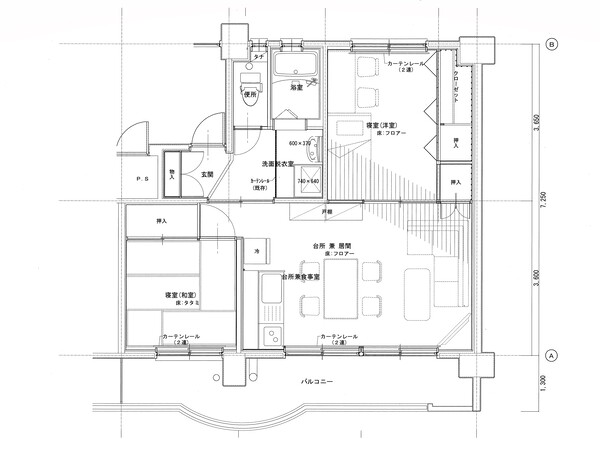
| 間取り | 2LDK( 洋室6帖 / 和室4.5帖 ) |
| 住宅使用料(家賃) | 月額18,000円から41,000円 |
| 共益費 | 月額1,000円 |
| 駐車場使用料 | 月額1,000円/1区画 |
| 今回募集戸数 | 1戸(4階) |

DK

風呂

トイレ

※間取りは405号室のもので実際は反転します。 ※冷蔵庫・家具は付属しません。
(2)入居(申込)資格
- 現に住宅に困窮していることが明らかな者であること。
- 高校生以下の子どもがいる世帯、または新婚世帯(5年以内)であること。
- 市区町村税を滞納していないこと。
- 暴力団員でないこと。
- 入居する定住促進住宅に住所登録ができること。
- 各地域の自治会や町内会等に所属し、活動や行事に参加できること。
(3)申込に必要な書類
- 定住促進住宅入居申込書
- 入居予定者全員の住民票謄本(続柄記載のもの)
- 入居予定者全員(幼児および就学中の方を除く)の納税証明書と所得証明書
- 新婚世帯の方は、婚姻年月日がわかるもの(戸籍謄本など)
※令和6年1月1日以前から村山市に住民登録されている方は、2と3を住民記録及び地方税関係を閲覧することについての「同意書」で代えることができます。
(4)申込受付期間・場所
期間 令和7年6月2日(月曜日)から令和7年6月13日(金曜日) ※土日祝日を除く
時間 午前9時から午後0時、午後1時から午後5時
場所 村山市建設課 管理係
(5)その他
- 部屋の内見(内覧)は、予約制で個別に受付します。建設課へご連絡ください。
- 選考については、住宅に困窮している実情等を調査し決定します。
- 申込者が多数となった場合は、抽選会をおこないます。
- 期間内に申込がない住宅については、受付期間終了後も先着順に随時受付します。
(6)参考:入居決定後について
- 入居決定された方は、保証人2名が連署した入居請書と、添付書類として保証人2名の印鑑証明書、所得証明書、納税証明書を提出してください。保証人は、市区町村税を滞納していない県内在住者で、収入が入居者と同程度以上かつ保証人両者間が同一世帯でない者、緊急の連絡に対応できる者とします。
- 入居決定された方は、敷金として、住宅使用料(家賃)の3か月分を納入してください。納入後に入居が可能となります。
- 定住促進住宅への住民登録完了後、新しい住民票謄本(続柄記載のもの)を提出してください。
- 定住促進住宅では動物類の飼育はできません。
- 住宅使用料(家賃)は、入居者の収入に応じて算定されます。毎年7月頃に収入状況等の申告をしていただきます。
- 入居後に暴力団員であることが判明した場合は、入居許可の取り消し、明渡し請求及び損害賠償金の請求をすることがあります。
(7)ダウンロード
定住促進住宅(ユニバ型・子育て世帯型住戸)入居者募集のご案内(R7.6.2)(PDF:1,020KB)
定住促進住宅(ユニバ型・子育て世帯型住戸)ー入居申込書(R7.6.2)(PDF:75KB)
PDF形式のファイルを開くには、Adobe Acrobat Reader DC(旧Adobe Reader)が必要です。
お持ちでない方は、Adobe社から無償でダウンロードできます。
Adobe Acrobat Reader DCのダウンロードへ
問い合わせ
建設課
電話:0237-55-2111 ファックス:0237-55-6472





